Pinheys Point Capstone
For my fourth-year capstone design project, I worked as part of a six-person team of Civil and Architectural Engineering students on the assessment and rehabilitation of the Stable Building located at the Pinheys Point Heritage Site. With the guidance of our supervising professors, we completed a conceptual design report followed by a feasibility study, which allowed us to evaluate and narrow multiple rehabilitation approaches to a final selected solution. We are now focused on refining this solution through detailed design and analysis to fully demonstrate its performance, constructibility, and suitability for the heritage context.
Goal
The goal of this project is to conduct a comprehensive assessment of the Pinheys Point Stables building and develop a viable new reuse strategy. Our findings will be documented in multiple reports, culminating in a final report in April. This final report will include detailed structural calculations and simulations, a thorough heritage recording, applicable codes and standards, 2D and 3D building models, stakeholder considerations, and our proposed design solution. The project provides an opportunity to apply the skills we have developed over the past four years to a real-world challenge and to communicate our findings to site stakeholders for potential implementation.
Challenges
Two main challenges arose during this project. The first was defining the project scope and planning how to complete all required work for the reports within a limited timeframe. We addressed this by outlining all report sections and assigning team leads with supporting members for each area. This structure allowed team members to focus on related tasks, collaborate efficiently, and ensure that the final report was cohesive and complete.
The second challenge was analyzing the buildings unfamiliar construction type. The structure, being partially masonry and partially wood-framed with brick infill, was unlike anything we had encountered, and we were unsure how the materials would behave. To overcome this, we consulted our supervising professors, including one specializing in unreinforced masonry. With their guidance, we were able to break the building into manageable components, make realistic assumptions, and continue our structural analysis effectively.
My Role
As the Structural Analysis and Design Lead, my primary responsibility is to assess the current state of the building’s structural components and evaluate how they would perform under our proposed design to ensure safety and compliance. I have also contributed to on-site data collection and supported various other project tasks. Key responsibilities include:
Analyzing the current capacities of wood and unreinforced masonry elements to determine structural safety and identify areas requiring reinforcement
Designing new wood structures to support proposed loads
Assisting with MQI analysis to estimate masonry properties
Setting up and taking measurements using a total station
Supporting project decision-making using a decision matrix and providing justifications
Coordination with team members to integrate structural analysis into overall design
Application of building codes and structural standards
Documentation and presentation of structural findings for reports and stakeholder review
Skills Used
MQI analysis
AutoCAD
Macro-block analysis
In-plane and out-of-plane failure mode assessment
Design following the CWC Wood Design Manual 2020
Total station data collection






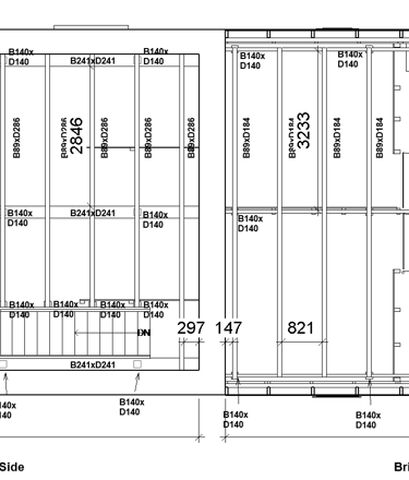
Pinheys Point Stables Building
Structural Floor Plan
Photogrammetry Model
Proposed Design Interior Rendering